Accedi al sito
Serve aiuto?

Lavori » Progetti » Edificio residenziale - Progetto - 2015



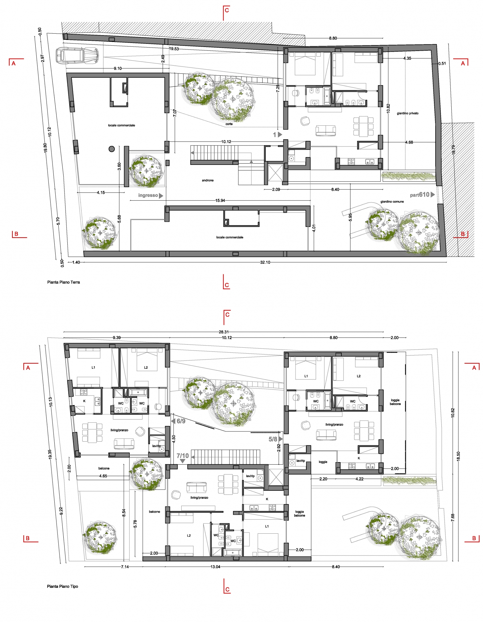
Edificio Residenziale - Progetto 
Progettisti :
Fabrizia Costa Cimino
Antonio Pelella


Collaboratori :
Carmen Fratantonio


Provincia di Salerno - Italia
2015

 

Dati

 Residenziale 904,23 Mq di Superficie Lorda

 Commerciale 160,18 Mq di Superficie Lorda

 




Pianta tipo