Progettisti:
Fabrizia Costa Cimino
Antonio Pelella
Collaboratore:
Francesco Russomanno
Rivisondoli (AQ) _ Italia
2011/2012
La casa in montagna è una scelta: il piacere di avere un rifugio per poter trascorrere il tempo libero ci porta ad immaginare questo luogo come accogliente e tipico.
Nel nostro immaginario il rimando al mondo di Heidi è immediato. Il mercato immobiliare cavalcando questo desiderio, ed ignorando che ci troviamo sugli Appennini e non in un maso tirolese, ha prodotto delle case dove il tutto è risolto con un uso scorretto e grossolano del legno: in Abruzzo le case sono in pietra.
Dovendo ridisegnare gli interni ci siamo preoccupati di migliorare l’organizzazione degli ambienti e, soprattutto, risolvere la mancanza di rapporto con il paesaggio. Ignorando le immagini patinate delle riviste d’interni, abbiamo inseguito lo scorcio di un prato, le cime degli alberi e le immagini riflesse delle colline.

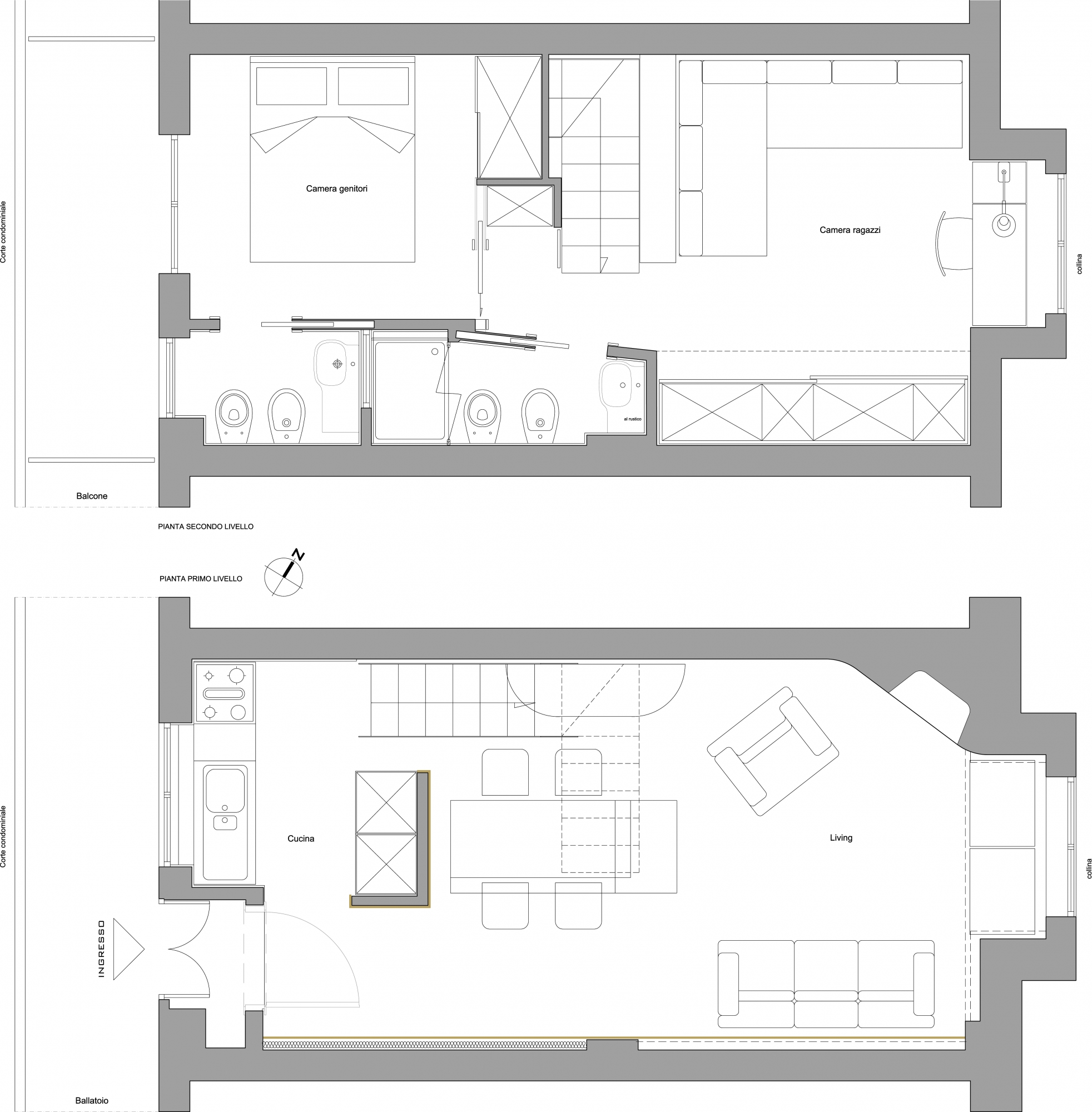
La nostra proposta per casa Perlingieri/Evangelista prevede, per il primo livello, un ambiente continuo tra est ed ovest. L’unico divisorio interno, mediando lo spazio cucina con il living, definisce il passaggio per il livello superiore.
L’orientamento della casa ci impone delle soluzioni che diano alla luce ed al paesaggio la possibilità di entrare.
La necessità di catturare l’esterno ci ha spinti a ridisegnare la controporta d’ingresso in modo da percepire la luce e gli alberi della corte condominiale. Di contrappunto per la finestra ad est abbiamo studiato una soluzione di imbotte con specchi che, oltre ad annullare le pareti, ci restituiscono delle immagini sempre variabili dell’esterno.
Con questo gioco di rimandi riusciamo a riportare in casa il paesaggio.
Entrando dal ballatoio una boiserie in legno ci accompagna per tutta la lunghezza fino a rivestire lo spazio della finestra. Nel living la scale interna è un elemento sospeso che attraversa l’ambiente. Dalla panca del bow window la percezione è completa: il camino, lo spazio divani, la scala con il tavolo, la parete cucina ed, a circa otto metri, l’ingresso.
Il secondo livello troviamo due camere di simile superficie utile e due bagni a spalla. Una parete armadio nella camera dei ragazzi ed un armadio a ponte sulle scale garantiscono le necessità del soggiorno in montagna. Nel disimpegno è previsto un piccolo arredo a servizio del bagno.
